גדעון 2 פרויקט בשיווק בלעדי – שיין נדל"ן

גדעון 2 פרויקט בשיווק בלעדי – שיין נדל"ן

מחיר מבוקש: החל מ 4,550,000 ₪ |

עיר: רמת השרון |

אזור: רובע הדר |

מס' חדרים: ראו פרטים בגוף המודעה

פרטים על הנכס

עיר

רמת השרון

אזור

רובע הדר

מחיר

החל מ 4,550,000

כניסה

פרטי הנכס

גודל בנוי

גודל מרפסת

פרטים נוספים

רובע הדר

Untitle5d 4

עיר:

רמת השרון

אזור:

רובע הדר

מחיר מבוקש:

החל מ- החל מ 4,550,000

כניסה:

פרטים נוספים:

סוג הנכס: דירה רחוב: גדעון 2 פרטי הנכס: גדעון 2 פרויקט בשיווק בלעדי – שיין נדל"ן חברה מבצעת – קבוצת גבאי PRESALE לזמן מוגבל –התקבל היתר בניה! דירות 5 חד’ מפנקות ,דירות 4 חדרים בקומות הגבוהות ודירות גן מפנקות . לפרטים נוספים חייגו: 077-6707391

PRESALE

תנאי התשלום

תנאי תשלום נוחים.
התחייבות לאכלוס דצמבר 2028

פרויקט תמא הריסה ובניה
רחוב גדעון 2 רמת השרון

לייעוץ ראשוני וקבלת פרטים חייגו: 077-6707391

 
מתקדמים לחיים חדשים ברמת השרון המוכרת.
במסגרת הפרויקט יפונו 12 יח”ד, במקומן ייבנו 28 יח”ד חדשות בבניין בוטיק מפואר בן 7 קומות.
הפרויקט נמצא במיקום מרכזי ונגיש לכל קרבת מקום אך נהנה מהשקט של העיר במקביל.
בסמוך לפארקים ירוקים, מגרשי שעשועים וספורט, מרכזים מסחריים, מוסדות חינוך ומוסדות ציבוריים רק מרחק הליכה,
לבחירתכם, דירות 5 חד’ מפנקות ,דירות 4 חדרים בקומות הגבוהות  ודירות גן מפנקות.
ההדמיות להמחשה בלבד

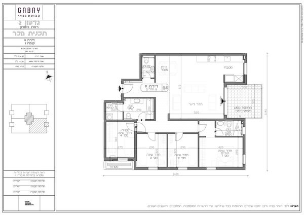
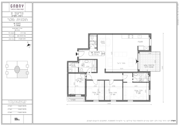
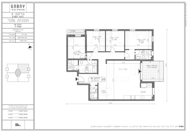
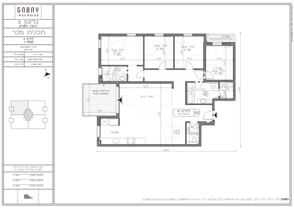
-דירת 4 חדרים בקומה ה-6 גודל הדירה 96 מ"ר בנוי + 12 מ"ר מרפסת כיוונים דרום מערב – מחיר מבוקש 4,550,000 ש"ח.

-דירת 4 חדרים בקומה ה-6 גודל הדירה 111 מ"ר + 12 מ"ר מרפסת כיוונים צפון מזרח – מחיר מבוקש 4,990,000 ש"ח.

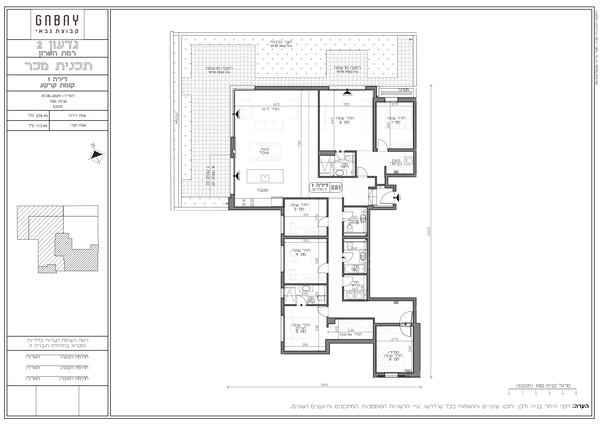
-דירת  5 חדרים גדולה כ-134 מ"ר + בנוי  12 מ"ר מרפסת עם נוף פתוח בקומות 1-3 כיוונים צפון מערב דרום מערב
(קומה -3 דרום מערב לא רלוונטי)
מחיר מבוקש 5,590,000 ש"ח.

דירת 5 חדרים גדולה כ-134 מ"ר בנוי + מרפסת 12 מ"ר עם נוף פתוח בקומות 1-3 כיוונים צפון מזרח/דרום מזרח קומות 1-3 מחיר מבוקש 5,470,000 ש"ח.

2 חניות תת קרקעיות 

מחסן לכל דירה!
PRESALE תנאי תשלום נוחים.
התחייבות לאכלוס דצמבר 2028
הדמיה פרויקט סולד
Untitle5d 4

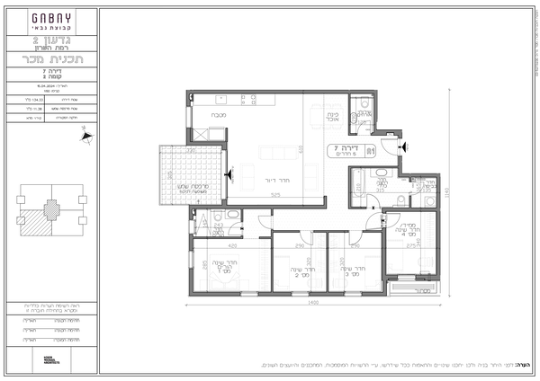
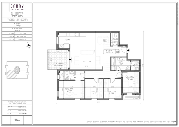
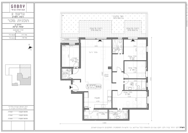
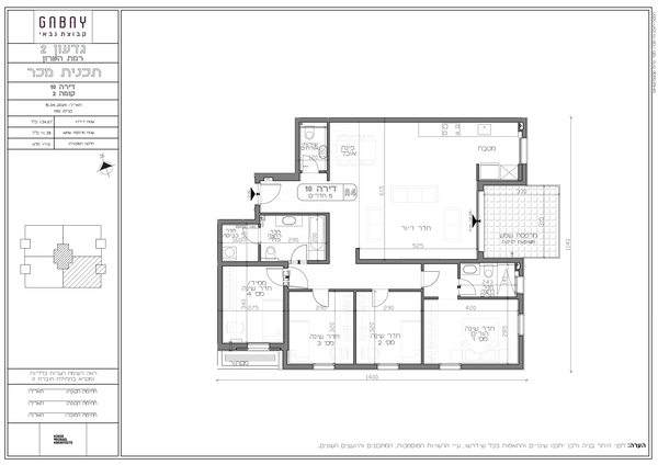
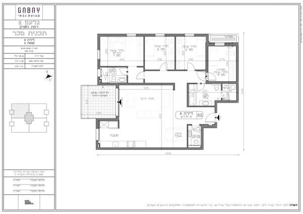
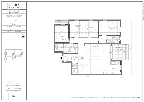
תכניות הדירה

דירה 1

דירה 2

דירה 3

דירות 4

דירה 5

דירה 6

דירה 7

דירה 8

דירה 9

דירה 10

דירה 12

דירה 13

דירה 14

מפת האיזור

למידע נוסף על הנכס, מלאו פרטיכם: